Architektur Ringlstetter

Weihungszell, Baden-Württemberg

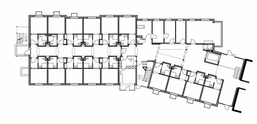
Erweiterung eines Seniorenheims um zusätzliche Zimmer

In Weihungszell wurde ein bestehendes Seniorenheim um 45 zusätzliche Zimmer erweitert. Die Maßnahme ergänzt den vorhandenen Gebäudebestand und erhöht die Kapazität der Pflegeeinrichtung deutlich.

Der Neubau ist funktional in die bestehende Anlage eingebunden und berücksichtigt die Anforderungen an Seniorenwohnen, Erschließung und Pflegebetrieb.

Impressionen des Projekts