Architektur Ringlstetter

Neuburg an der Donau, Bayern

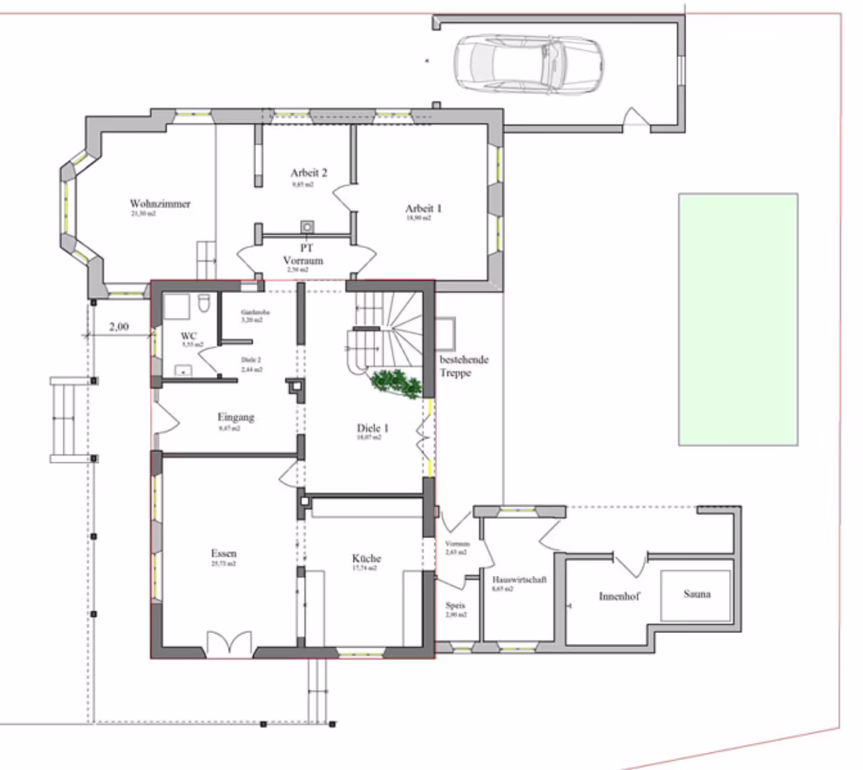
Sanierung und Erweiterung eines Siedlungshauses

In Neuburg an der Donau wurde ein kleines Siedlungshaus aus den 1960er-Jahren saniert und erweitert. Der Bestand blieb in seiner Grundstruktur erhalten und wurde funktional sowie räumlich ergänzt.

Durch die Kombination aus Sanierung und Erweiterung konnte das Wohnhaus an heutige Anforderungen angepasst werden, ohne den Charakter des ursprünglichen Gebäudes vollständig aufzugeben.

Impressionen des Projekts