Architektur Ringlstetter

Enns, Oberösterreich

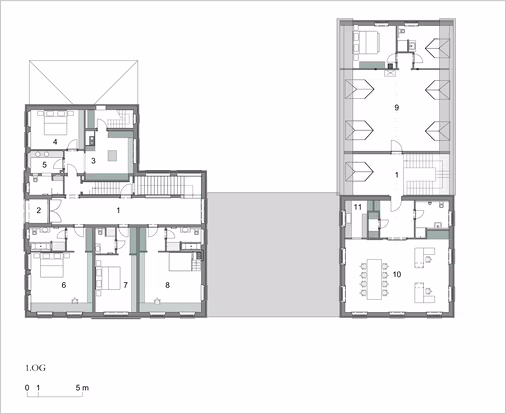
Sanierung und Neubau eines Vierseithofs

Der ursprüngliche Vierseithof bestand aus zwei zweigeschossigen Hauptgebäuden sowie zwei untergeordneten Nebengebäuden. Im Zuge der Umgestaltung wurden die Nebengebäude vollständig abgerissen und durch zeitgemäße Neubauten ersetzt. Auch der östliche Altbau wich einem Neubau, während der nördliche Bestandsbau erhalten blieb. Um die Proportionen neu auszubalancieren, wurde dort ein Geschoss zurückgebaut.
Durch diese Maßnahmen entstand ein großzügiger und atmosphärischer Innenhof, der heute das räumliche Zentrum der Anlage bildet und den historischen Charakter des Vierseithofs neu interpretiert.

Die klassische Architektursprache war ein ausdrücklicher Wunsch der Bauherren und prägt das Erscheinungsbild des Ensembles. Lediglich der Küchenbau, als verbindendes Element zwischen Alt- und Neubau, hebt sich bewusst ab: Er erhielt ein begehbares Flachdach als zusätzliche Nutzfläche.
Ursprünglich waren für die Küche großformatige, ungeteilte Glasflächen vorgesehen. Im Laufe des Planungsprozesses entschieden sich die Bauherren jedoch für eine geteilte Fensterstruktur, die sich harmonischer in die klassische Gestaltung des Vierseithofs einfügt.

Impressionen des Projekts

Zurück zur Projektübersicht →