Architektur Ringlstetter

Altomünster, Bayern

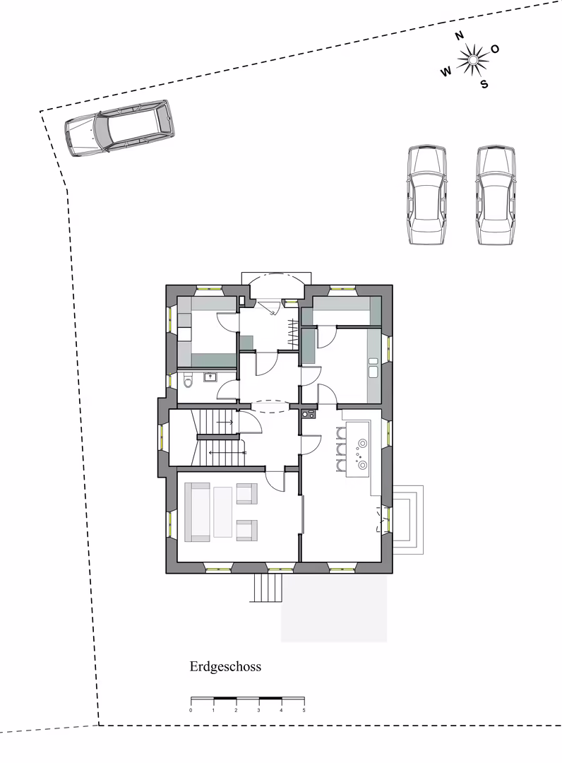
Großes Einfamilienhaus mit getrennten Wohnbereichen

Das Haus in Altomünster wurde als großzügiges Einfamilienhaus für eine Familie mit vier Kindern geplant. Die innere Organisation des Hauses folgt einer klaren funktionalen Gliederung.

Küche, Essbereich und Wohnzimmer wurden bewusst räumlich voneinander getrennt. Dadurch entstehen eigenständige Nutzungsbereiche mit jeweils spezifischen Raumqualitäten, anstelle eines offenen, zusammengefassten Wohnraums.

Impressionen des Projekts